Abi 1999 gada ... abi sadega 2013! Kaut kas sadega - tātad nosmirdēja! Vizuāli neko neieraudzīju!
Apskats sekos stundas laikā, tagad 17:30
Kinoskopi aizgāja uz konteineru, bet man tieši vajadzēja divus kinoskopa ferītus. Un pie reizes šķūnītī vairāk vietas! Vēl palicis CRT tipa 17collu 2002.g. monitors, ejošs, bet laikam vairs nelietošu. Ja nu kādam ļoti nabagu studentam uzdāvināšu, bet tā jau būs "pornogrāfija".
Daewoo CP-375 1999
 |
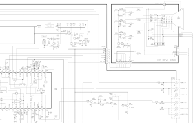
| Principiālā shēma! |
 |
Audio Power TDA7056 mono 3W bez radiatora ar tikai vienu 3W 16omu skaļruni - SP-77A04
Stabilizators un TV ieslēdzējs TDA8138 un KA7808P |
 |
TV impulsīvais barošanas bloks STR-S5707 (140W) un
transformators 2084.0014 1wk47-99 50M0000099 - pēc izskata 400W |
 |
| DW370M datasheet |
 |
| L9461M |
 |
| TDA6106Q x3 - kinoskops v901 -izmests |
 |
| TDA8356, 2SD2499, Transformatori TD-10A2 un 1142.5057 50h0000177 - 20...30kv |
 |
tda8374a tda8495p u3665m (tda4665)
TUNER= 3303KHC D9L08AU MADE IN U.K. |
KLONS-TV STV2193 šasija PAEX0159A
kārtīgi sadegušas barošanas aizsardzības diodes, bet laikam uzsprāga kondensators C530= 2kv 680pF
 |
Barošanas bloks 2SC5586 (v501), c3807 (v512), T501 = A-TXXXX0028 BCK-70-01,
N701= Audio Power man ir LA4266 ar radiatoru 3 W (VCC = 16 V/RL = 8 Ω),
un divi skaļruņi YOT512-5W16Ω - skanēja labi un skaļi |
 |
| N204= UOC - 8851CPNG6EG1 |
 |
| tuner= www.gdc.com.nk et-5k1e-cv200k a-t9xx0330b |
 |
| N401= stv9302a (n402), V411= 1803dfh 1500v 10a, T402= BSC25-N1664 A-T922F-R 060119-A1 |
... visu aiznesu atpakaļ uz šķūnīti, krāmu plauktā! Jāiet pirkt alus, kā nekā piektdiena 13!